D&CP福武Ⅱ【2,080】土地75.04坪 建物30.34坪

2,080万円

愛媛県西条市福武甲

予讃線「伊予西条」駅徒歩30分

価格
2,080万円
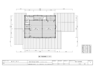
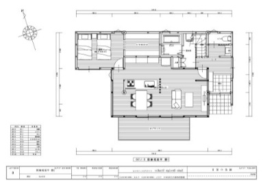
間取り
3LDK
土地面積
248.08㎡
所在地
愛媛県西条市福武甲
交通

予讃線伊予西条」駅 徒歩30分

建物面積
100.32㎡
築年月
1976年5月(築49年)

物件の特徴

  • 室内洗濯機置場

  • カウンターキッチン

  • 独立洗面台

セールスポイント

揺れを少なめにすることを第一に考えてつくられた耐震構造になってます。みなさまから好評である、独立した洗面所が付いている物件となっています。100.32㎡の建物面積がある物件です。駐車する場所は何台あっても嬉しいですね。ここは駐車3台可です。住まい探しをするのであれば、予讃線伊予西条周辺はいかがでしょう。住みやすい環境が整っているので、きっとお客様にも満足していただけます。

ポイント

ファミリー向け リノベーション 温水洗浄便座 仲介手数料無料 ユニットバス

担当者のコメント

田中 祐太

こちらの物件は洗面所が独立しています。建物面積100.32平方メートルですので快適な生活ができます。広いウォークインクロゼットは沢山の洋服が収納できます。追い焚き機能付きで水道代の節約につながります。予讃線伊予西条近くの地域に強い当社スタッフが住まい探しをサポート致します。お引っ越しを検討しているなら、ぜひお気軽にご連絡ください。

基本情報

販売戸数
-
総戸数
-
間取り / 詳細
3LDK
向き
-
建物面積(坪数)
100.32㎡(30.34坪)
土地面積(坪数)
248.08㎡(75.04坪)
建ぺい率 /
容積率
60%/200%
築年月
1976年5月(築49年)
土地権利
所有権
土地
(敷金 / 保証金)
- / -
建物構造
木造 / 2階建
傾斜地部分面積
-
路地状敷地
-
私道負担面積
-
セットバック
高圧線下面積
-
施工会社
-
用途地域
無指定
地目 / 地勢
宅地 / 平坦
接道状況
一方(南 公道 4.0m 間口 5.0m)
国土法届出要否
不要
都市計画
非線引区域
総区画数 /
販売区画数
-/-
現況
空家
その他
法令上の制限
田園居住地区
取引態様
売主
引渡し
相談
リノベーション
    2025年3月
    フルリノベーション 耐震工事実施済み
取引条件の
有効期限
2025年12月18日

設備条件

設備条件
  • 閑静な住宅地 / リノベーション済 / ファミリー向け / 仲介手数料無料 / 室内洗濯機置場 / フローリング / プロパンガス / 井戸水道 / 公共下水 / オール電化 / 電気有 / 照明器具付き / 駐車3台可 / 耐震構造 / IHクッキングヒーター / コンロ2口以上 / カウンターキッチン / コンロ3口 / 追焚機能浴室 / 温水洗浄便座 / 浴室1坪以上 / 独立洗面台 / ユニットバス / ウォークインクロゼット / 複層ガラス / ディンプルキー
設備(その他)
    -

その他

物件番号
95025134
管理コード
250323601
建築確認番号
-
情報更新日
2025年12月04日
次回更新予定日
2025年12月18日
取扱会社
  • 株式会社トータルエステート・プロ
  • 愛媛県西条市朔日市730番地1 
  • TEL:0120-692-380
  • 愛媛県知事 (4) 第4977号
  • (公社)愛媛県宅地建物取引業協会(公正取引協議会加盟事業者)
備考
「D&CP福武Ⅱ【2,280】土地75.04坪 建物30.34坪」のここがイチオシ。魅力が満載の素敵な3LDK物件の情報をご用意しています。建物面積は100.32平米となっており広さも十分ではないでしょうか。洗面所が独立している物件です。西条市エリアや予讃線伊予西条付近での住まい選びをしませんか。この地域でなら、きっと希望に沿った一戸建てが見つかることでしょう。

周辺施設

  • 西条愛寿会病院の画像

    総合病院

    西条愛寿会病院

    653m(9分)

  • マルナカ 西条店の画像

    スーパー

    マルナカ 西条店

    890m(12分)

  • ローソン 西条大町店の画像

    コンビニエンスストア

    ローソン 西条大町店

    1558m(20分)

支払いシミュレーション

月々の支払額
9.6
購入希望物件価格
万円
頭金
万円
金利
%
返済額(ボーナス1回分)
万円
返済期間

※ボーナスは自動で年2回分で計算されます。

近隣の物件

  1. D&CP飯岡Ⅳ【1,980】土地68.36坪 建物29.20坪

    西条市飯岡

    3LDK (96.52㎡)

    1,980万円

  2. 西条市小松町新屋敷土地建物【1,980】59.83坪 27.05坪

    西条市小松町新屋敷

    3LDK (89.42㎡)

    1,980万円

  3. 西条市大町中古【1,680】(土地)55.00坪 (建物)14.23坪

    西条市大町

    2DK (47.04㎡)

    1,680万円

  4. 福武中古住宅【520】土地59.93坪 建物32.15坪

    西条市福武甲

    6DK (106.31㎡)

    520万円

D&CP福武Ⅱ【2,080】土地75.04坪 建物30.34坪

D&CP福武Ⅱ【2,080】土地75.04坪 建物30.34坪

2,080万円

-

3LDK(100.32㎡)

お気軽にお問い合わせください

無料お問い合わせ

株式会社トータルエステート・プロ

0120-692-380

9:00~18:00

(休:地方祭、年末年始)