4棟 18件
-
22.5万円
826.46㎡ (-)
- 公共下水
-
1,080万円
91.60㎡ (-) /築26年 /2階建
- 公共下水
神拝小学校まで1401m 西条北中学校まで2061m
-
591万円
244.06㎡ (-)
- 公共下水
西条市立西条小学校まで1042m 西条市立西条北中学校まで1462m
-
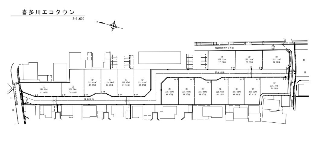
1,048万円~1,236万円
223.47㎡~271.22㎡ (-)
- 公共下水
こだわりポイント満載の喜多川エコタウン。こちらの住宅用地で念願のマイホームはいかがでしょうか。土地の購入をご検討の方にお勧めの売地となっています。当社が不動産探しから新生活を始めるまで、お客様をしっかりトータルサポートいたします。まずはお客様の住まいに求めるこだわりをお聞かせください。ご連絡をお待ちしております。
神拝小学校まで1363m 西条北中学校まで2049m