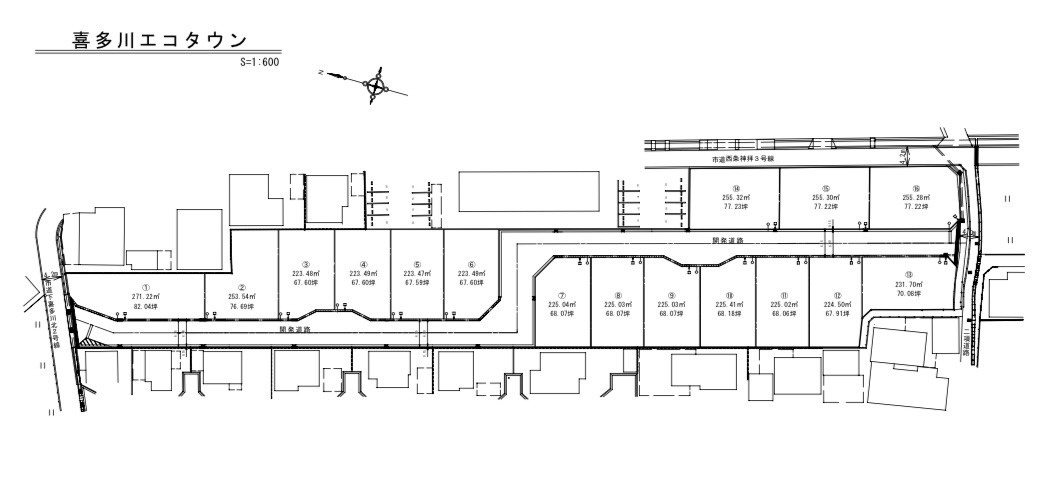
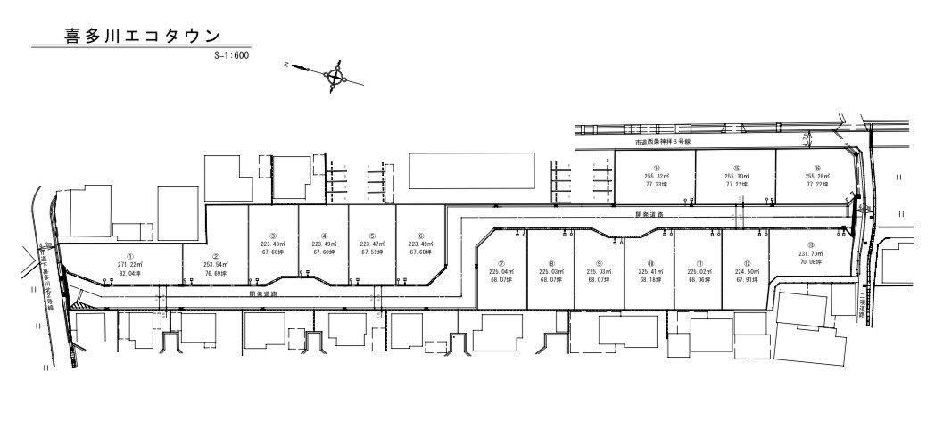
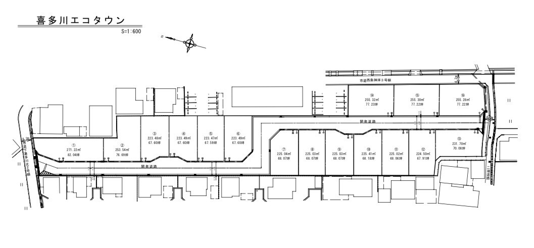
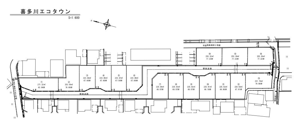
喜多川エコタウン 3号地

1,048万円

愛媛県西条市喜多川

予讃線「伊予西条」駅徒歩28分

価格
1,048万円
坪単価
15.5万円(67.60坪)
所在地
愛媛県西条市喜多川
交通

予讃線伊予西条」駅 徒歩28分

土地面積(坪数)
223.48㎡(67.60坪)
建ぺい率 / 容積率
50% / 80%

セールスポイント

新生活を失敗せず、スタートさせたいならこちらの「喜多川エコタウン」はいかがでしょうか。こちらの住宅用地で念願のマイホームはいかがでしょうか。売地をお探しの方には、こちらの売地はいかがでしょうか。当社から土地を探しませんか。お客様に適した土地をご紹介していきます。まずはご希望条件などをお気軽にお申し付けくださいませ。

ポイント

開発分譲地内 建築条件なし 分譲地物件 仲介手数料無料 更地渡し

担当者のコメント

田中 祐太

こだわりポイント満載の喜多川エコタウン。こちらの住宅用地で念願のマイホームはいかがでしょうか。土地の購入をご検討の方にお勧めの売地となっています。当社が不動産探しから新生活を始めるまで、お客様をしっかりトータルサポートいたします。まずはお客様の住まいに求めるこだわりをお聞かせください。ご連絡をお待ちしております。

基本情報

販売区画数
16区画
総区画数
16区画
土地面積(坪数)
223.48㎡(67.60坪)
坪単価
15.5万円
私道負担面積
割合
-
セットバック
建ぺい率 /
容積率
50% / 80%
高圧線下面積
-
傾斜地部分面積
-
路地状敷地
-
地目
宅地
地勢
平坦
造成工事
完了予定
2026-08-00
土地権利
所有権
建築条件
都市計画
非線引区域
用途地域
第一種低層住居専用
接道状況
-
国土法届出要否
不要
最適用途
住宅用地
その他
法令上の制限
建築基準法22条区域
取引態様
売主
現況
未造成
引渡条件
更地渡
引渡時期
2026年8月下旬
開発許可番号
-
取引条件の
有効期限
2026年02月04日

設備条件

設備条件
  • 仲介手数料無料 / プロパンガス / 井戸水道 / 公共下水 / 電気有
設備(その他)
    -

その他

物件番号
100216693
管理コード
-
情報更新日
2026年01月21日
次回更新予定日
2026年02月04日
取扱会社
  • 株式会社トータルエステート・プロ
  • 愛媛県西条市朔日市730番地1 
  • TEL:0120-692-380
  • 愛媛県知事 (4) 第4977号
  • (公社)愛媛県宅地建物取引業協会(公正取引協議会加盟事業者)
備考
公共下水道受益者負担金:面積(㎡)×224円
雨水放流同意金:33,000円

喜多川エコタウンの他の区画

  1. 1号地

    - (271.22㎡)

    1,231万円(15万円/坪)

  2. 2号地

    - (253.54㎡)

    1,151万円(15.01万円/坪)

  3. 4号地

    - (223.49㎡)

    1,048万円(15.5万円/坪)

  4. 5号地

    - (223.47㎡)

    1,048万円(15.51万円/坪)

  5. 6号地

    - (223.49㎡)

    1,116万円(16.51万円/坪)

  6. 7号地

    - (225.04㎡)

    1,090万円(16.01万円/坪)

  7. 8号地

    - (225.03㎡)

    1,056万円(15.51万円/坪)

  8. 9号地

    - (225.03㎡)

    1,056万円(15.51万円/坪)

  9. 10号地

    - (225.41㎡)

    1,057万円(15.5万円/坪)

  10. 11号地

    - (225.02㎡)

    1,055万円(15.5万円/坪)

  11. 12号地

    - (224.50㎡)

    1,053万円(15.51万円/坪)

  12. 14号地

    - (255.32㎡)

    1,236万円(16万円/坪)

  13. 15号地

    - (255.30㎡)

    1,236万円(16.01万円/坪)

  14. 16号地

    - (255.28㎡)

    1,236万円(16.01万円/坪)

周辺施設

  • しらかた皮フ科クリニックの画像

    皮膚科

    しらかた皮フ科クリニック

    566m(8分)

  • ローソン 西条下喜多川店の画像

    コンビニエンスストア

    ローソン 西条下喜多川店

    641m(9分)

  • マルヨシセンター 西条店の画像

    スーパー

    マルヨシセンター 西条店

    952m(12分)

  • 神拝小学校の画像

    小学校

    神拝小学校

    1091m(14分)

  • 西条北中学校の画像

    中学校

    西条北中学校

    1860m(24分)

支払いシミュレーション

月々の支払額
9.6
購入希望物件価格
万円
頭金
万円
金利
%
返済額(ボーナス1回分)
万円
返済期間

※ボーナスは自動で年2回分で計算されます。

近隣の物件

  1. 北条エコタウン

    西条市北条

    - (207.25㎡)

    722万円

  2. 西条市小松町明穂土地【130】128.48坪

    西条市小松町明穂

    - (424.74㎡)

    130万円

  3. 西条市氷見【750】84.25坪

    西条市氷見乙

    - (278.53㎡)

    750万円

  4. 春日町エコタウン

    西条市福武甲

    - (231.76㎡)

    947万円

喜多川エコタウン

喜多川エコタウン

1,048万円

-(223.48㎡)

お気軽にお問い合わせください

無料お問い合わせ

株式会社トータルエステート・プロ

0120-692-380

9:00~18:00

(休:地方祭、年末年始)